Text and Photos © Cesare Zucca
Get ready to be amazed!
Today I take you to Villa Dei Vescovi, a spectacular Venetian villa located in Luvigliano, a hamlet of Torreglia (Padua, Italy) .
This property is one of the jewels adopted by FAI is a non-profit foundation established in 1975, using the National Trust as a model, with the aim of protecting and enhancing Italy’s historical, artistic and landscape heritage, a perfect example of the humanistic culture, which wants to combine art, architecture and landscape in a daily experience that can stimulate towards elevated thoughts .
The construction dates back to the Renaissance and is inspired by a Roman domus. It can be considered the first example of the new taste for the rediscovered Roman classicism in the hinterland of the Serenissima Venezia.
The interior of the villa, divided on the main floor into the Hall of Ancient Figures, the Putto Hall, the Dining Hall (or of Apollo and Orpheus) and the bishop’s private rooms, was frescoed in the years 1542-1543 by the Flemish painter (active in Venice) Lambert Sustris, responsible for the frescoes in the internal rooms, where he wanted to recreate the architecture and external views of the villa in a perspective game that unites the interior with external nature.
The surrounding gardens and the porticoed loggias of the villa offer a relaxing immersion in the natural beauty of the Euganean Hills, while the rustic buildings near the entrance house the ticket office, the bookshop and a restaurant.The surrounding gardens and the porticoed loggias of the villa offer a relaxing immersion in the natural beauty of the Euganean Hills, while the rustic buildings near the entrance house the ticket office, the bookshop and a restaurant,
At the end of the visit, you are welcome to spend some time comfortably seated under the lodges: you will thus immerse yourself even more in the beauty of the landscape and in the special atmosphere of this residence, which moves you to meditation, reflection and peace.
FAI philosophy is a way to “safeguard ancient buildings of high historical-cultural interest, giving them new life as exceptional places to stay available to all” If you decided to stay in Villa and indulge in one of the two apartments reachable through a suggestive spiral staircase that goes from the main villa to the attic floor, get prepared for a night to remember…
A NIGHT TO REMEMBER
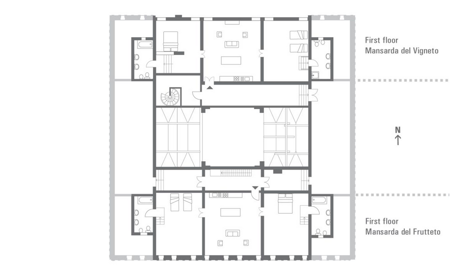
What, perhaps, you still don’t know is that the Villa is equipped with two “secret” apartments inside the central building: the Mansarda del Vigneto, boasting views over the vineyard and the Mansarda del Frutteto overlooking the orchards.
Both delivering an unforgettable experience, at a cost that will amaze you, if you consider the extraordinary nature of the location, Both delivering an unforgettable experience, at a cost that will amaze you, if you consider the extraordinary nature of the location.

In the Villa you ‘ll find the restaurant BISTRO, guided by Chef Elena Cirilli.
Her menu recalls accents of the Venetian tradition, from saor made with fennel, pumpkin and radicchio, to tasty first courses with duck ragu, very popular in the area, from white meats from the courtyard to wild boar served with soft polenta and chestnuts.

A yummy new entry in the dessert section is the “Zuccamisu” a spoon dessert and a sweet variant of the classic tiramisu, this time featuring the pumpkin (zucca in Italian)
” I love this dessert, says Elena, because it is a great classic so loved all over the world and I like to prepare it in different versions (with strawberries, bananas or pumpkin) depending on the time of year we are in“

It’s a dessert that never tires and makes adults and children happy around a well-laden table. Would you love to try to make it at home? Here the original recipe.
ZUCCAMISU’

Ingredients for 10 single-portion glasses:
- 20 ladyfingers
- coffee to taste
- 500 g mascarpone cream
The peculiarity of this recipe lies in the mascarpone cream which is made sweet and added with pumpkin.
For a perfect mascarpone cream:
500 g mascarpone
4 egg yolks
120 g sugar
50 g water
200 g pumpkin puree (add or reduce for more or less sweetness)
Prepare the mascarpone cream as follows: dissolve the sugar in water in a saucepan over low heat up to a temperature of 120°. Whisk the egg yolks separately and once foamy, pour in the sugar syrup. Continue whipping until cool. Work the mascarpone with a spoon and add it to the whipped egg yolks. Finally, incorporate the pumpkin puree obtained from a pumpkin cooked in the oven for about 20 minutes and blended.
Assemble the tiramisu glasses in the classic way:
a ladyfinger dipped in coffee at the base – mascarpone cream – another ladyfinger – another mascarpone cream – dusted bitter cocoa.